News 安全評價報告查詢
宣威市順吉石化有限公司一六八 加油站安全現狀評價報告
發布日期:2024-08-01 點擊次數:87

安全評價機構安全評價工作業績表

評價項目基本情況

項目名稱

宣威市順吉石化有限公司一六八

加油站安全現狀評價報告

合同編號

DAAPQJ2024-21

合同簽訂時間

2024年7月3日

評價行業

危險化學品

評價報告提交完成時間

2024.8.1

評價類別

安全現狀評價

項目所屬地址

宣威市來賓街道長征路5號

評價人員

項目負責人

張紅興

評價組長

張紅興

技術專家

饒旭軍

評價報告編制人

張紅興

評價組成員

向榮鼎、毛衛旭、崔巍、陸朝春

現場勘查情況

現場勘查開始時間

202473

現場勘查結束時間

202473

現場勘查人

張紅興、崔巍

業主陪同人

朱樹紅

現場勘查情況

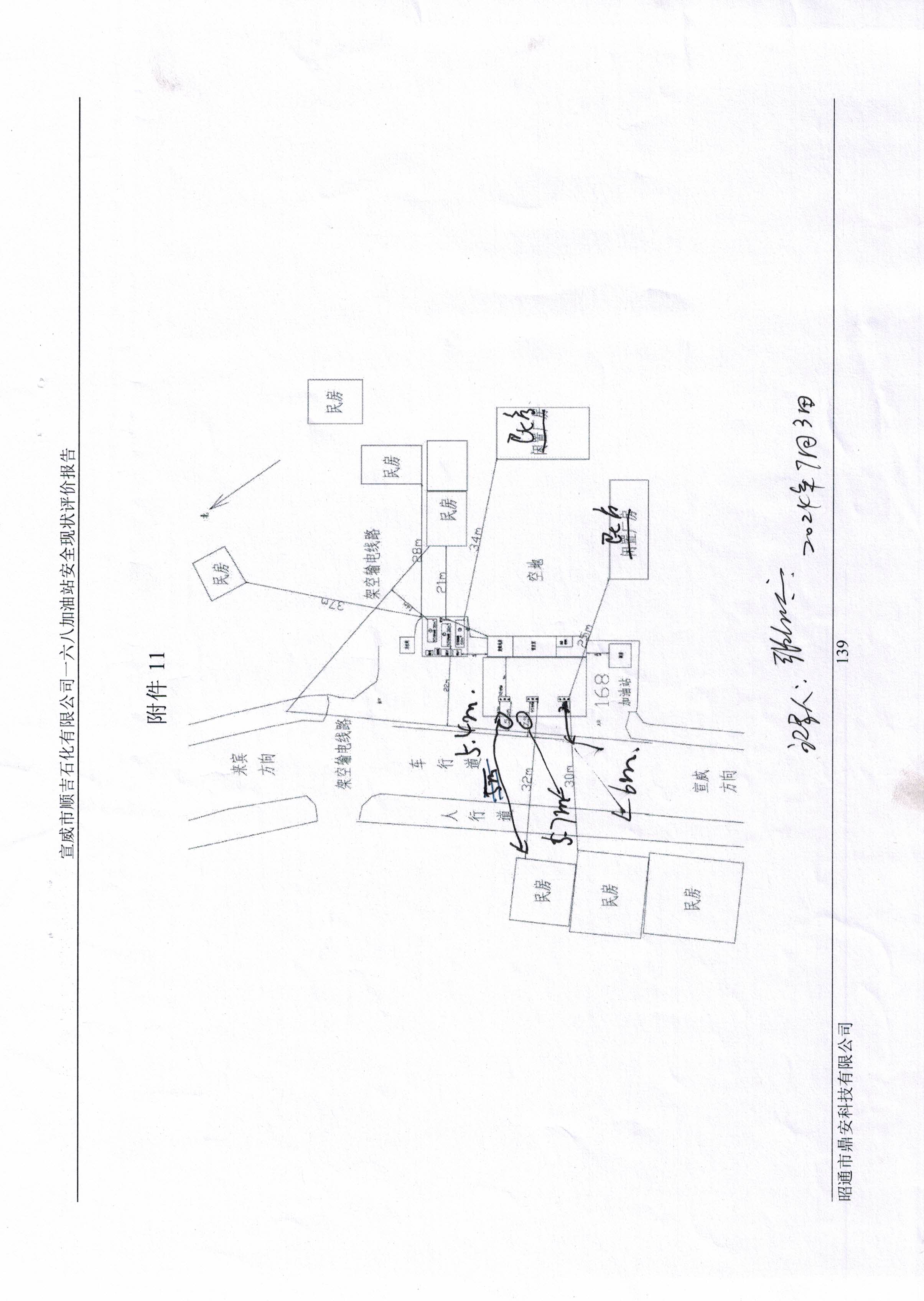
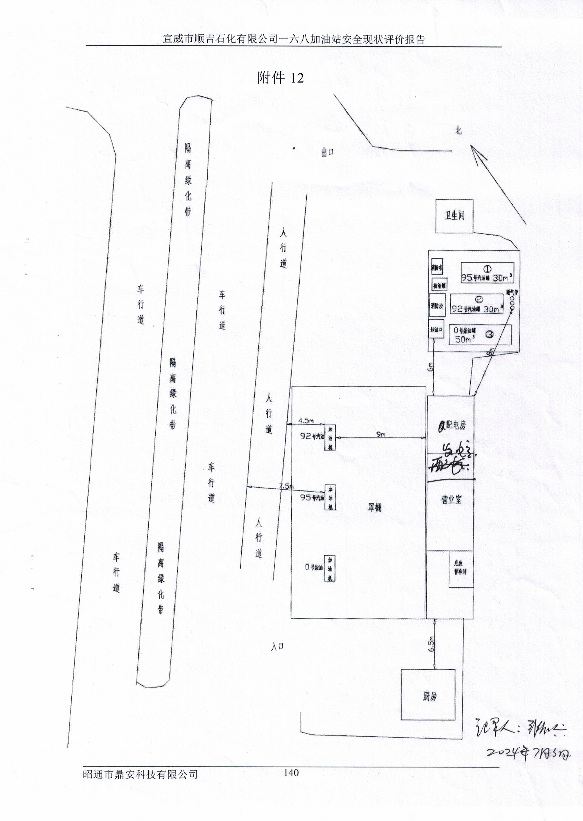
無人機航拍加油站及周邊平面照片,查看加油站周邊環境,查看加油區、油罐區、液位計、配電室現場情況,查看安全管理資料。

報告審核情況

內審

內審意見( 通過  口 不通過 )       是    口 否

過程控制審核

內審意見( 通過  口 不通過 )        是    口 否

技術負責人審核

內審意見( 通過  口 不通過 )       是    口 否

隱患:

192#95#加油機內部的真空泵泵體未連接接地保護線。

2)油罐區集油井有積水,觀察井內水位較高。

3)配電室配備的絕緣手套未張貼定期做耐壓測試的標貼。

整改措施建議

1)對92#95#加油機內部的真空泵泵體增加接地保護線。

2)及時抽排油罐區集油井、觀察井內的積水。

3)配電室配備的絕緣手套張貼定期做耐壓測試的標貼。

評價結論為:宣威市順吉石化有限公司一六八加油站已完成本次評價發現的不符合項整改,站址選擇及平面布置、加油工藝及設施、消防設施、電氣及報警系統、建(構)筑物等方面符合《汽車加油加氣加氫站技術標準》(GB50156-2021)標準規定;經營場所、危險化學品儲存設施、人員配置及培訓考核、安全管理制度、安全操作規程、應急預案、應急物資滿足《危險化學品安全管理條例》(國務院令第591號,第645號修改)第三十四條、《危險化學品經營許可證管理辦法》(原國家安監總局令第55號公布,第79號修正)第六條要求,從安全的角度宣威市順吉石化有限公司一六八加油站具備危險化學品經營的安全條件。

宣威順吉石化168加油站現場勘察記錄2.jpg

宣威順吉石化168加油站現場勘察記錄1.jpg

宣威順吉石化168加油站部分現場勘查照片.jpg

02-宣威順吉168加油站安全現狀評價報告



聯系我們
  • 地址:
    昭通市昭陽區昭陽大道336號(新華書店二樓)
  • 電話:
    0870-3170896
關注我們
移動官網
版權所有©2021  昭通市鼎安科技有限公司 滇ICP備17009229-1號